4330 Capitol AvenueDallas, TX 75204




Mortgage Calculator
Monthly Payment (Est.)
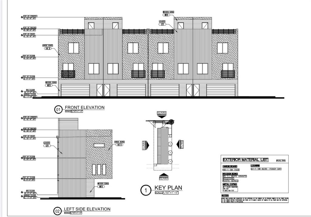
$3,372APPROVED PLANS - Prime Development Investment Opportunity in East Dallas! This unimproved lot at 4330 Capitol Ave is zoned MF-2 Multifamily and includes fully approved architectural plans and city permits for a 4-unit, 3-story condo-townhouse project with private rooftop terraces. Each residence is designed with modern open-concept living, attached garages, and premium urban finishes. Plans deliver approx. 1,750 sq ft of conditioned (AC) living space per unit—a total of 7,000 sq ft of livable area across all 4 units (not including garages or terraces). Each home also offers a private 2-car garage of approx. 400 sq ft (not included in advertised sq ft), along with a spacious rooftop terrace designed for outdoor entertaining (also not included in sq ft). Located minutes from Uptown, Lower Greenville, Downtown, and Knox-Henderson, this highly desirable area is surrounded by new construction, strong buyer demand, and excellent resale potential. All architectural, engineering, utility coordination, and permitting work has already been completed—construction can begin immediately. A rare turnkey opportunity for builders and investors. Plans and permit documents available upon request.
| 4 months ago | Listing updated with changes from the MLS® | |
| 4 months ago | Listing first seen on site |
© 2020 North Texas Real Estate Information Systems. All rights reserved. Information is deemed reliable but is not guaranteed accurate by the MLS or NTREIS. The information being provided is for the consumer's personal, non-commercial use, and may not be reproduced, redistributed, or used for any purpose other than to identify prospective properties consumers may be interested in purchasing.
Last checked: 2026-04-02 05:31 AM CDT
Did you know? You can invite friends and family to your search. They can join your search, rate and discuss listings with you.