3624 N Fitzhugh AvenueDallas, TX 75204




Mortgage Calculator
Monthly Payment (Est.)
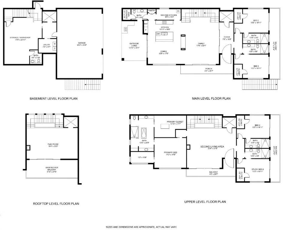
$19,390Stunning Custom Home with Elevator Access and Amenities one block to Katy Trail and Turtle Creek! - Will be completed in April. Welcome to your dream home, an exquisite custom masterpiece with luxury living across multiple floors. This architectural gem boasts an elevator that transports you from the expansive lower floor, where you'll find a spacious 3 car garage, living, storage, half bath, to each beautifully designed level. As you step inside, the 1st floor invites you into an elegant living area, where natural light dances through the windows. This level features 2 generously sized bedrooms and 2 full bathrooms. The heart of the home, an extraordinary kitchen with a 2nd catering kitchen, showcases unique features. Enjoy the warmth of the see through fireplace or take your entertaining outdoors with direct access to the pool and patio area, complete with a convenient half-bath for poolside and guest convenience. Ascend to the next floor, where you'll discover another 2 bedrooms and 2 full bathrooms, alongside a luxurious master suite that epitomizes relaxation. The master bedroom offers a full bath suite and a spacious walk-in closet, thoughtfully designed with a 2nd laundry area for your convenience. An office nook, tucked away, provides the perfect space for productivity or quiet reflection. Venture to the top floor and enjoy a versatile space ready to fit your lifestyle, whether as an exercise or yoga room, a game room, or a tranquil retreat. Step out onto the large balcony, an ideal spot for morning coffee or evening sunsets. Located just steps away from the scenic Katy Trail and Turtle Creek, this home offers not only luxury, but also the perfect blend of city living and nature. Experience the best of both worlds in this unparalleled residence that promises to elevate your lifestyle. Don’t miss your chance to own this extraordinary home that truly has it all! Schedule your private tour today and envision the endless possibilities.
| 13 hours ago | Listing updated with changes from the MLS® | |
| 22 hours ago | Listing first seen on site |
© 2020 North Texas Real Estate Information Systems. All rights reserved. Information is deemed reliable but is not guaranteed accurate by the MLS or NTREIS. The information being provided is for the consumer's personal, non-commercial use, and may not be reproduced, redistributed, or used for any purpose other than to identify prospective properties consumers may be interested in purchasing.
Last checked: 2026-03-06 08:08 AM CST
Did you know? You can invite friends and family to your search. They can join your search, rate and discuss listings with you.