9034 Forest Hills BoulevardDallas, TX 75218


Mortgage Calculator
Monthly Payment (Est.)
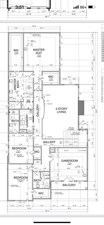
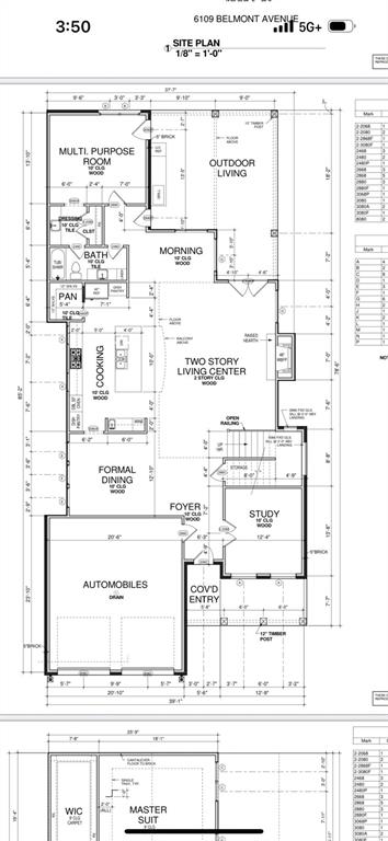
$6,730New construction in a prime East Dallas location, scheduled for completion in June 2026, total under roof sq. ft. 5219. This home offers a balance of modern living and everyday functionality. The main living area features impressive 21-foot ceilings, creating an open and airy atmosphere filled with natural light. The layout includes 4 bedrooms, 4 full bathrooms, a private office, and a separate dining room, ideal for both daily living and entertaining. The kitchen flows into a cozy breakfast area and living space, designed for comfort and connection. Interior features include white oak engineered wood flooring and a gas fireplace. Upstairs, a spacious game room with a built-in bar provides additional space for relaxation or hosting guests. Enjoy outdoor living with an oversized covered patio in the backyard, as well as a welcoming front patio that adds charm and curb appeal. Built with attention to detail, this home offers modern design, functional space, and a highly desirable East Dallas location.
| 4 days ago | Listing updated with changes from the MLSĀ® | |
| 5 days ago | Listing first seen on site |
Ā© 2020 North Texas Real Estate Information Systems. All rights reserved. Information is deemed reliable but is not guaranteed accurate by the MLS or NTREIS. The information being provided is for the consumer's personal, non-commercial use, and may not be reproduced, redistributed, or used for any purpose other than to identify prospective properties consumers may be interested in purchasing.
Last checked: 2026-04-12 09:08 AM CDT
Did you know? You can invite friends and family to your search. They can join your search, rate and discuss listings with you.